COLLODION LOGO

METAMORFISMO

diseño, arquitectura, urbanismo & construcción
INICIO ACERCA DE DISEÑO ARQUITECTURA URBANISMO CONSTRUCCIÓN CONTACTO

© all rights reserved 2021 diseñado por metamorfismo

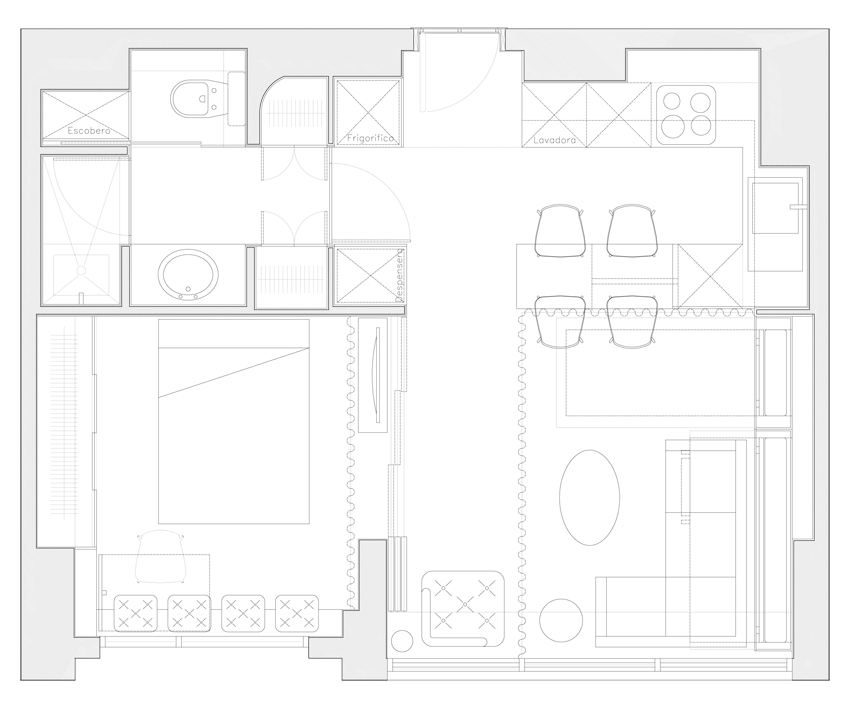
Reforma interior apartamento en Santiago de la Ribera, San Javier.

Datos del trabajo

• Año 2015.
• C/ San Martín de Porres, Santiago de La Ribera, San Javier.
• Arquitecto Director & Contratista.
• Acabado.

Resumen de la obra

• Proyecto propio y obra de Interiorismo.
• 38 m2
• 32.000 €



Memoria


reforma apartamento en San Javier
reforma apartamento en San Javier
reforma apartamento en San Javier
reforma apartamento en San Javier
reforma apartamento en San Javier
reforma apartamento en San Javier
reforma apartamento en San Javier
reforma apartamento en San Javier
reforma apartamento en San Javier
reforma apartamento en San Javier
reforma apartamento en San Javier
reforma apartamento en San Javier
reforma apartamento en San Javier
reforma apartamento en San Javier
reforma apartamento en San Javier